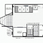
- 8×8 Flame_Sabores Floor Plan
- 8×8 Concession Trailer For Sale
- 8×8 Concession Trailer For Sale
- 8×8 Concession Trailer For Sale
INQUIRE NOW | Concession Nation
Send us your information and one of our experts we’ll reach out shortly. To verify your phone number, you will receive a one-time SMS message. This message is only to confirm your number is valid. No marketing or promotional texts will be sent. Message and data rates may apply.





