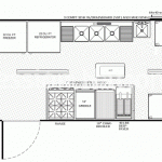
- 8×18 Gracious
- 8×18 Gracious
INQUIRE NOW | Concession Nation
Send us your information and one of our experts we’ll reach out shortly. To verify your phone number, you will receive a one-time SMS message. This message is only to confirm your number is valid. No marketing or promotional texts will be sent. Message and data rates may apply.

